ご相談・ご見学等のお問い合わせ

空室状況

 
 時点の情報を表示しています。空室状況は日々変動いたしますので最新の状況はお問い合せください。

町田市の介護付き有料老人ホームエクセレント町田

EXCELLENT MACHIDA

町田市で介護付き有料老人ホームをお探しならエクセレント町田へ

町田市の介護付き有料老人ホーム エクセレント町田のホーム案内

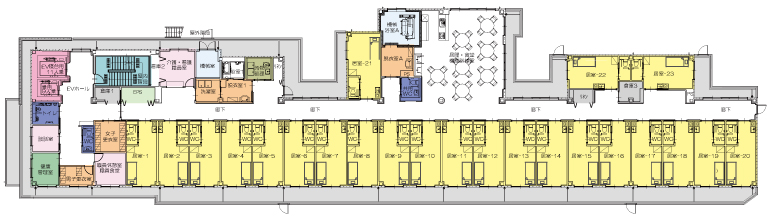
介護付き有料老人ホーム エクセレント町田 2F

町田市の介護専用型有料老人ホーム エクセレント町田 1F

介護付き有料老人ホーム エクセレント町田 3F

町田市の介護専用型有料老人ホーム エクセレント町田 2F~3F

Googleインドアビュー

事業所概要

名称 介護付き有料老人ホーム エクセレント町田
所在地 〒194-0213
東京都町田市常盤町2955-1
種類 特定施設入居者生活介護(介護専用型)
(介護付き有料老人ホーム)
事業所番号 1373205705
入居の要件 介護専用型(要介護1~5)
敷地面積 2461.57平米
延床面積 1889.85平米
構造 地上3階地下0階・耐火建築物
居室数 50室(全室個室)
居室面積 18.57~20.62平米
居住の権利形態 利用権方式
利用料の支払い方式 月払い方式
開設 2016年4月1日

アクセス

交通案内

電車とバスでお越しの場合
JR横浜線 [淵野辺駅]下車
神奈中バス [淵野辺駅北口]より、バス停[常盤]下車
・淵21系統 [小山田はなみずきの丘]行
・淵65系統 [神奈中多摩車庫]行

東京都で介護サービスをお探しの方は、こちらのページもよくご覧になっています